Loading...

Call Us Now
+44 (0)7974 035 035
Opening times
Mon - Sat: 08:00AM - 19:00PM

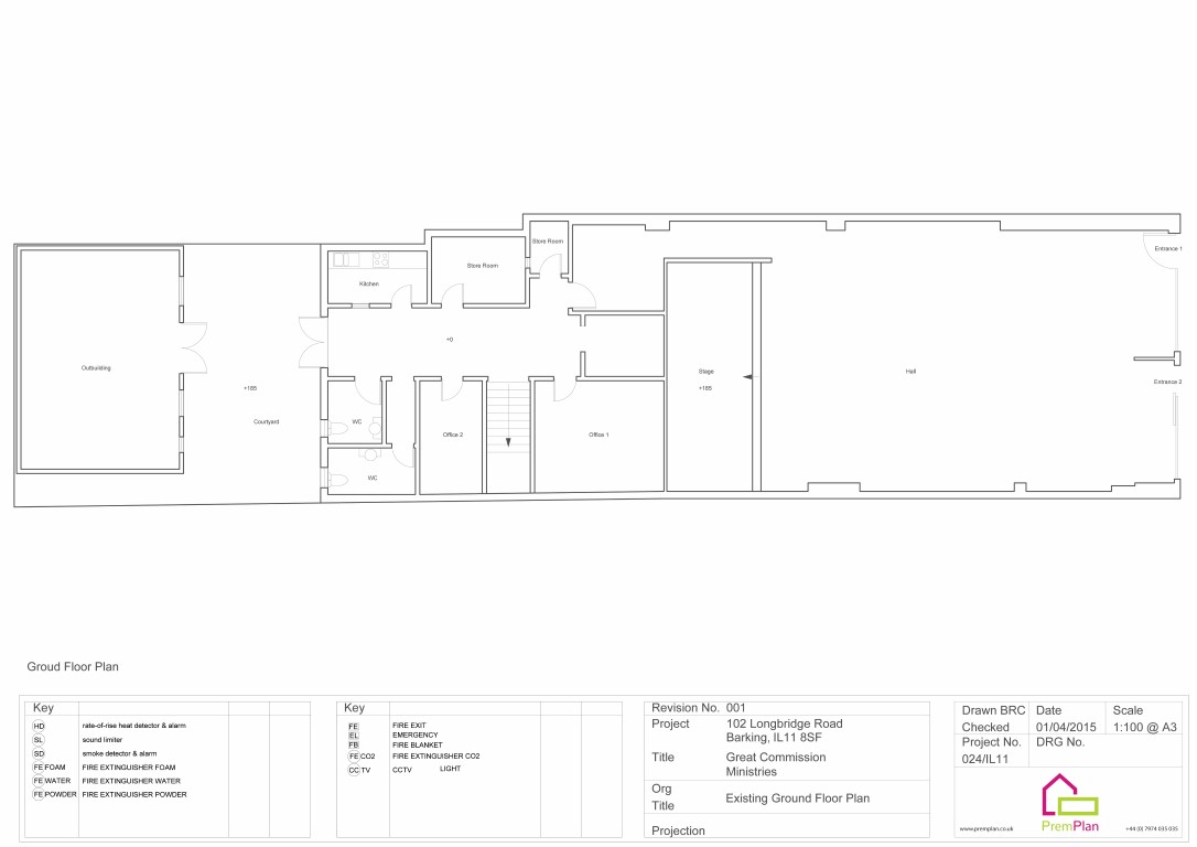
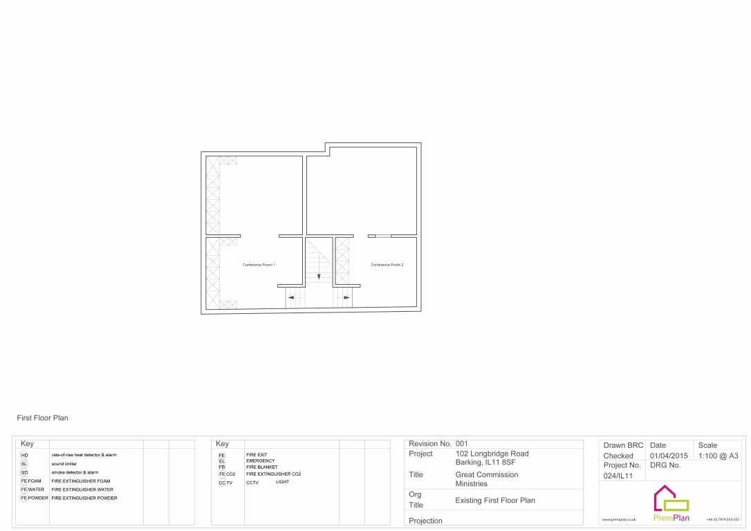
Project Page - Great Commission Ministries, Barking

Project info

  • Client: Private owner
  • Status: Completed / APril 2015
  • Spaced Added: N/A
  • Location: Barking, Uk

Background

Premises Licence

Great Commission Ministries is formed of 2 retail units which have now been combined to create a well proportioned Church. It has a large hall on the first floor when entering; offices at the rear; a child care area with a play area and meeting areas above. Great Commission Ministries provides an anchor for the community allowing a calm place for reflection for people of all walks of life.

The Approach

PremPlan approach each project on its own merit, carefully considering the properties strengths and weaknesses in relation to you, so that we can make well informed decisions on any alterations needed. Our ambition to create exceptional design at an affordable cost is a fundamental part of our vision and we are constantly looking to create spaces which excite their users.

Copyright: PremPlan