Loading...

Call Us Now
+44 (0)7974 035 035
Opening times
Mon - Sat: 08:00AM - 19:00PM

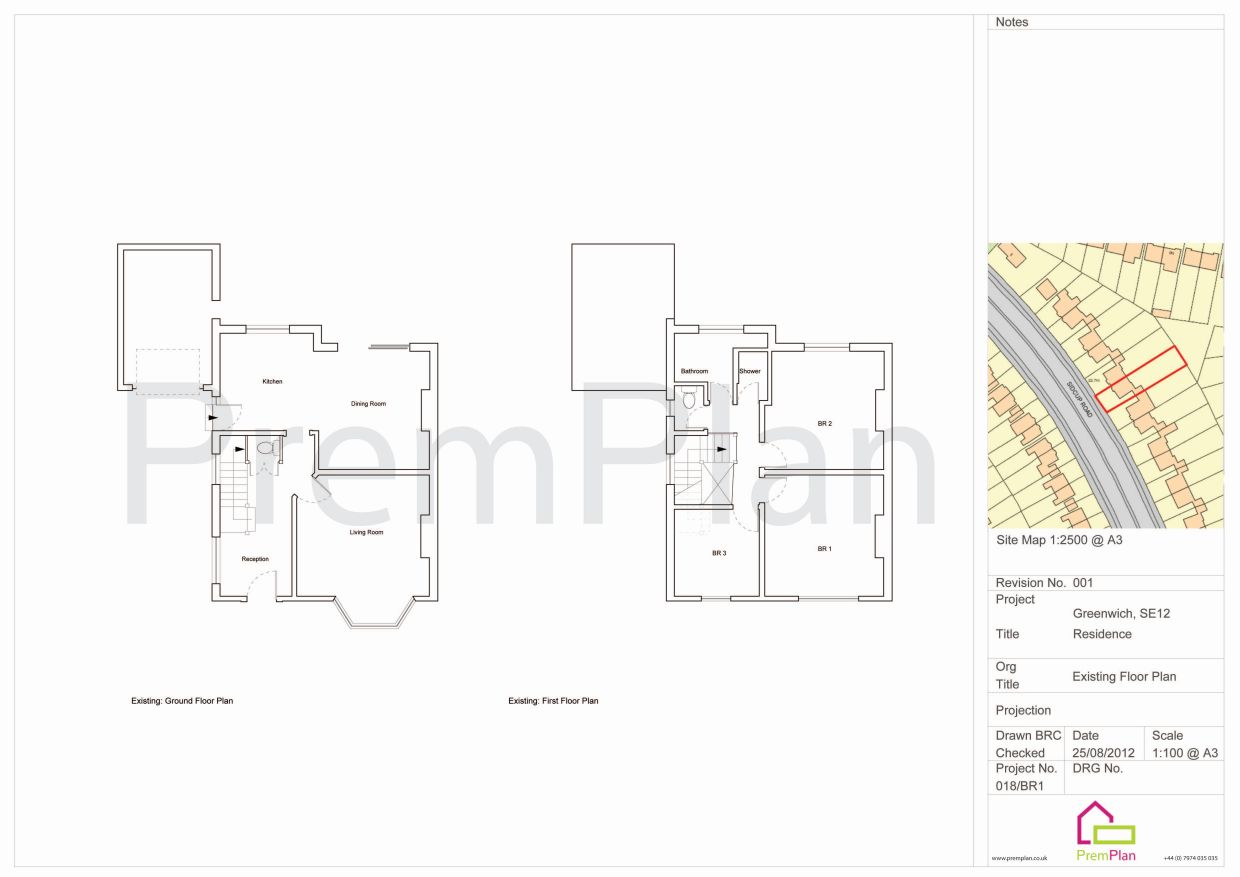
Project Page - Residential Extension, Greenwich

Project info

  • Client: Private owner
  • Status: Completed / August 2012
  • Spaced Added: 45.4M²
  • Location: Greenwich, Uk

Background

Project type: Planning Permission

This spacious 1920's semi-detached house was bought by our client with the ambition of transforming this substantial 3 bedroom house into a spacious 5 bedroom house whilst retaining a road facing garage.

The position of house within its plot allowed for an adventurous planning proposal which included a full height side extension and a single storey rear extension. In doing this we have created several additional spaces including an additional reception, gym, office and 2 bedrooms.

The Approach

We specialise in Planning Drawings for: House Extensions / Alterations, Loft Conversions, Garage Conversions, Basement Extensions, Outbuildings, Conversions and much more.
Our professional service at PremPlan aims to provide you with approval for your development at a competitive cost.

Copyright: PremPlan