Loading...

Call Us Now
+44 (0)7974 035 035
Opening times
Mon - Sat: 08:00AM - 19:00PM

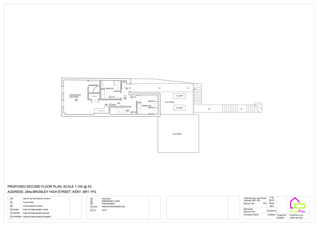
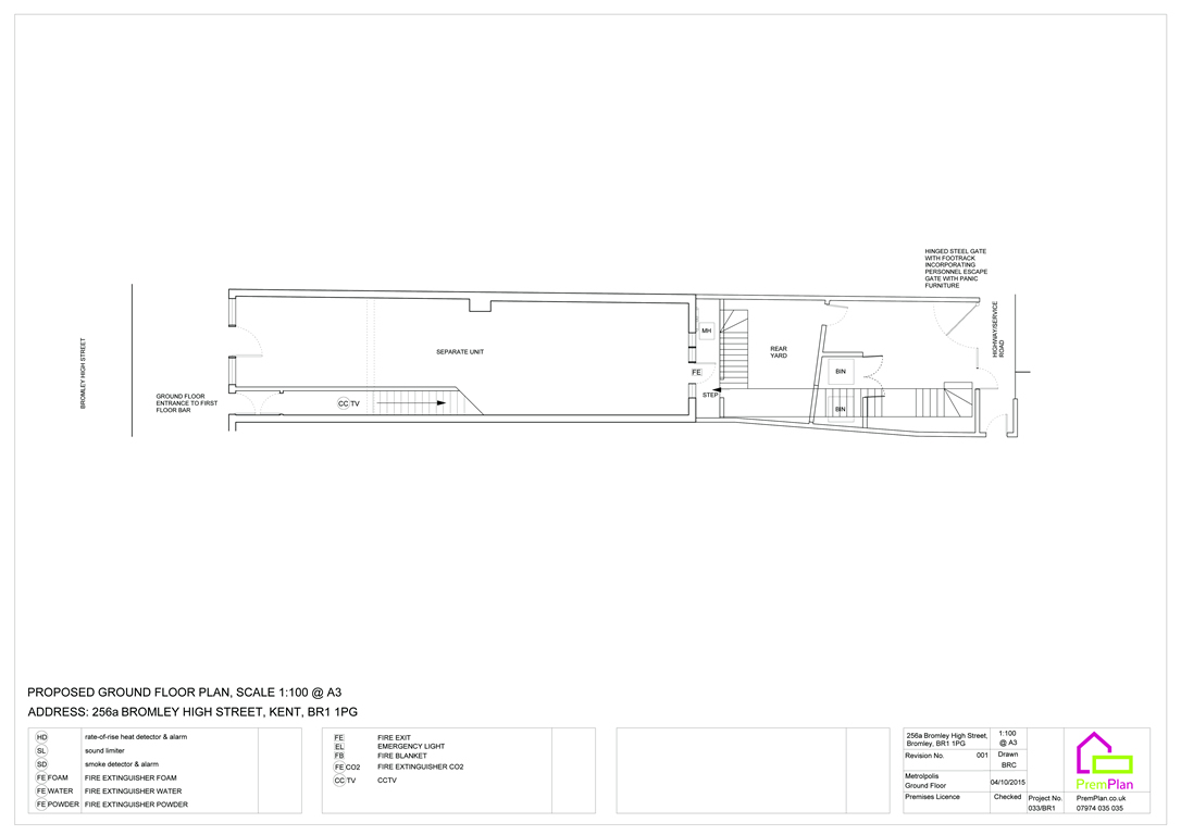
Project Page - Residential Refurbishment, Bromley

Project info

  • Client: Private owner
  • Status: Completed / October 2015
  • Spaced Added: N/A
  • Location: Bromley, Uk

Background

Premises Licence

Metropolis was once the heart and soul of the karaoke scene in Bromley borough. It closed in 2013 for a full refurbishment included new and improved interiors and additional space. With the premises being closed for refurbishment as well as the new floor plan layout the owner needed new drawings suitable for a premises licence.

The Approach

PremPlan approach each project on its own merit, carefully considering the properties strengths and weaknesses in relation to you, so that we can make well informed decisions on any alterations needed. Our ambition to create exceptional design at an affordable cost is a fundamental part of our vision and we are constantly looking to create spaces which excite their users.

Copyright: PremPlan