Loading...

Call Us Now
+44 (0)7974 035 035
Opening times
Mon - Sat: 08:00AM - 19:00PM

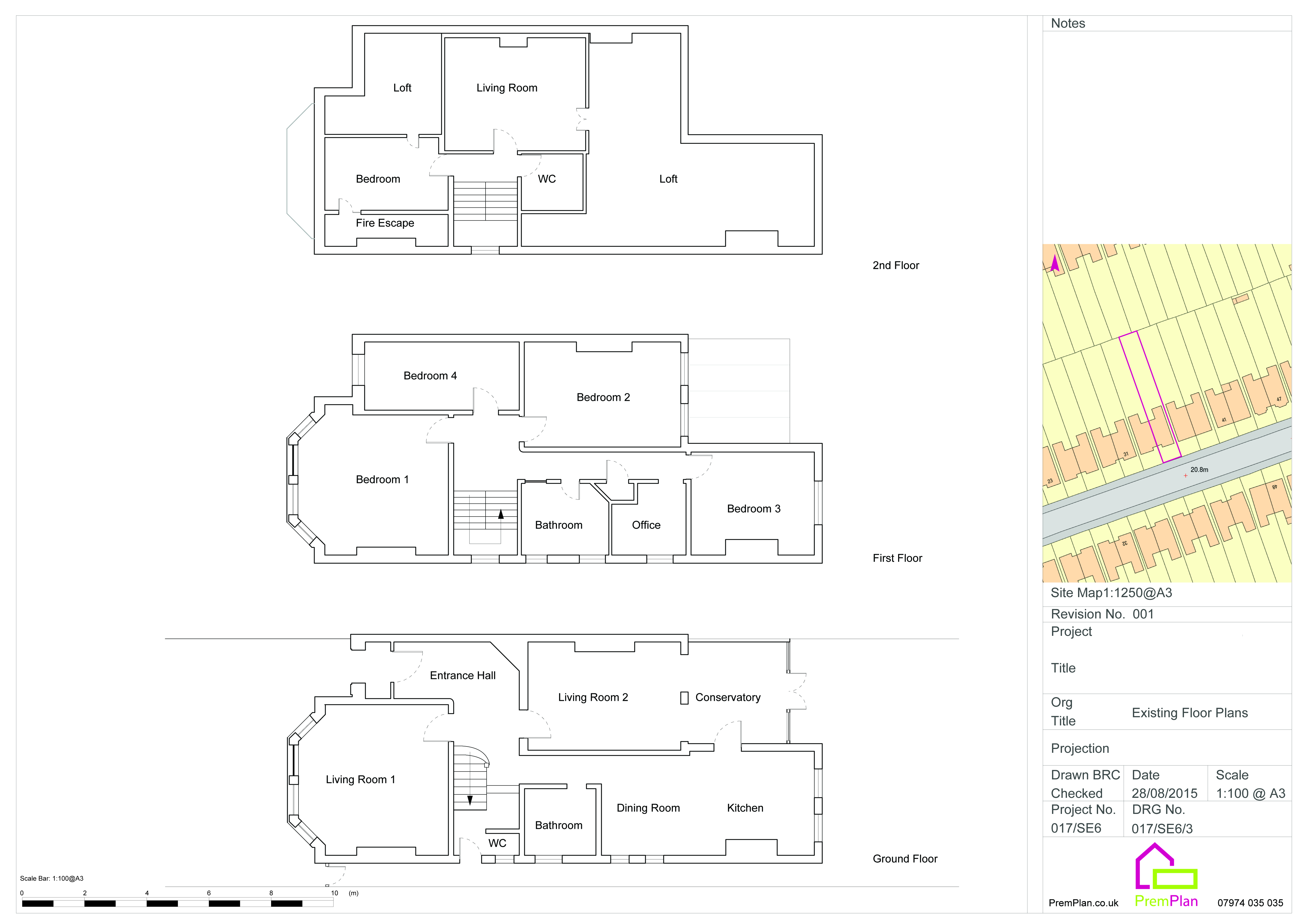
Project Page - Residental Loft Extension, Lewisham

Project info

  • Client: Private owner
  • Status: Completed / August 2015
  • Spaced Added: 12M²
  • Location: Lewisham, Uk

Background

Planning Premission

This beautiful Edwardian property is composed of 6 bedrooms, 2 reception, 3 bathrooms set out over 3 floors in the heart of one of grandest roads. The existing loft conversion consisted of two bedrooms and a bathroom however the client wanted to incorporate small kitchen diner so to create a self contained living area.

The Approach

Due to the complexities of working in a conservation area we positioned the new dormer on the rear of the property adjacent to the larger living space. This new elongated addition allowed for not only a new kitchen, but much needed additional space. In doing this we have essentially turned the former conversion into a self contained living space, but not detracted from the original layout of the property. The position of the dormer is set back from the furthest point of the property so that it doesn't dominate the rear of the house. Its form is simple and unnecessary fascias have been avoided to help create architectural continuity.

Copyright: PremPlan