Loading...

Call Us Now
+44 (0)7974 035 035
Opening times
Mon - Sat: 08:00AM - 19:00PM

Project Page - Residential Extension, Croydon

Project info

  • Client: Private owner
  • Status: Completed / May 2015
  • Spaced Added: 18M²
  • Location: Croydon, Uk

Background

Planning Permission

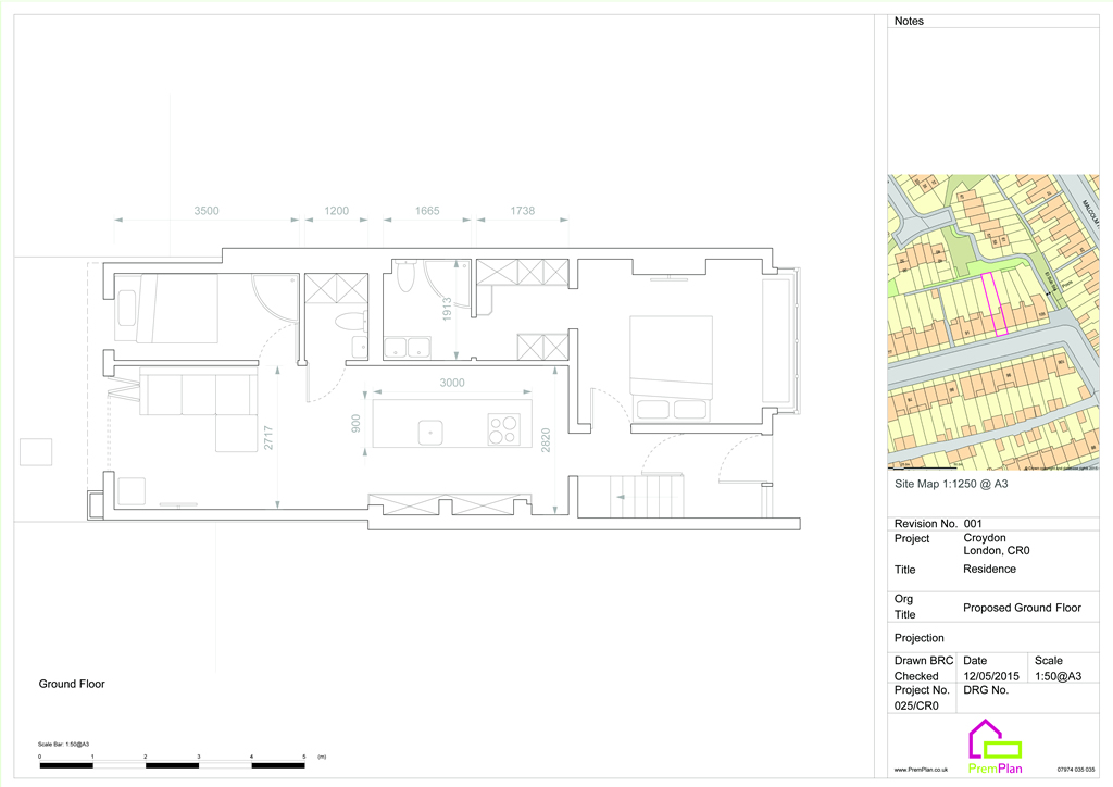
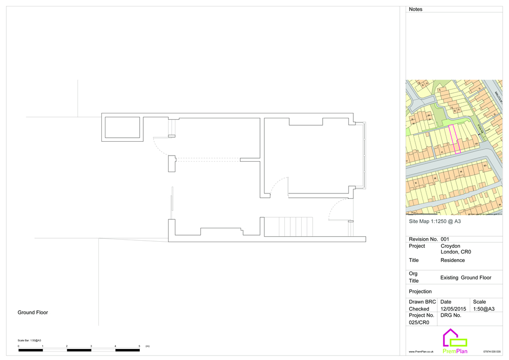
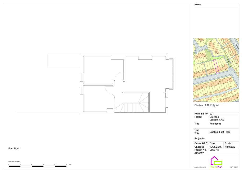
This beautiful building was originally a 3 bedroom house arranged over 2 floors. However today it sits proudly within a row of terraces with it sample sized loft conversion which is a neatly self contained studio space. The aim of this project was to separate the ground floor of the house so to create a 2 bedroom self contained flat.

The Approach

We felt it was important to do this without detracting from the character of the house and so that on first entering you were not faced with an imposing wall dividing the individual floors. PremPlan decided that to best optimise the entrance that a frosted glass partition would be installed allowing maximum light throughout the entrance and still allowing for a sense of connection between the various floors. We carefully studied the flow of the building so that all the rooms could maximise the use of space, deciding that a walk though closet and bathroom were the best solutions. The 5 meter extension with its three skylights allows lots of light and its contemporary style neatly compliments the existing house creating a beautiful feature when looking from the garden.

Copyright: PremPlan